杉並区桃井一丁目戸建

-

東京都杉並区桃井1丁目15-25

中央線「荻窪」駅徒歩12分

総武線「荻窪」駅徒歩12分

丸ノ内線「荻窪」駅徒歩12分

価格
-
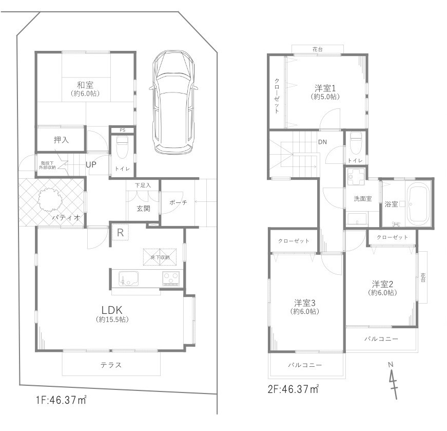
間取り/建物面積
-/-
所在地
東京都杉並区桃井1丁目15-25
築年
2005年1月(築21年)
交通

中央線荻窪」駅 徒歩12分

総武線荻窪」駅 徒歩12分

丸ノ内線荻窪」駅 徒歩12分

杉並区桃井一丁目戸建の基本情報

物件名
杉並区桃井一丁目戸建
価格
-
建物面積
-
土地面積
-(-)
築年月
2005年1月(築21年)
総戸数
-
所在地
東京都杉並区桃井1丁目15-25
交通

中央線荻窪」駅 徒歩12分

総武線荻窪」駅 徒歩12分

丸ノ内線荻窪」駅 徒歩12分

杉並区桃井一丁目戸建の詳細情報

設備条件
設備(その他)
    -
土地権利
普通賃借権
国土法届出
不要
用途地域
第一種低層住居専用
取引態様
仲介
引渡し
即時

杉並区桃井一丁目戸建

お気軽にお問い合わせください

無料お問い合わせ

IETASULIFE株式会社

03-3639-5030

10:00~17:00

(休:火曜・水曜)